









| 계획명 | 신사동 634-16 근린생활시설 대수선공사 |
| 대지위치 | 서울시 강남구 신사동 634-16번지 |
| 지역지구 | 도시지역, 제3종 일반주거지역 |
| 높이 | 10.37m |
| 건축면적 | 179.50m2 |
| 연면적 | 559.94m2 |
| 규모 | 지하1층 / 지상3층 |
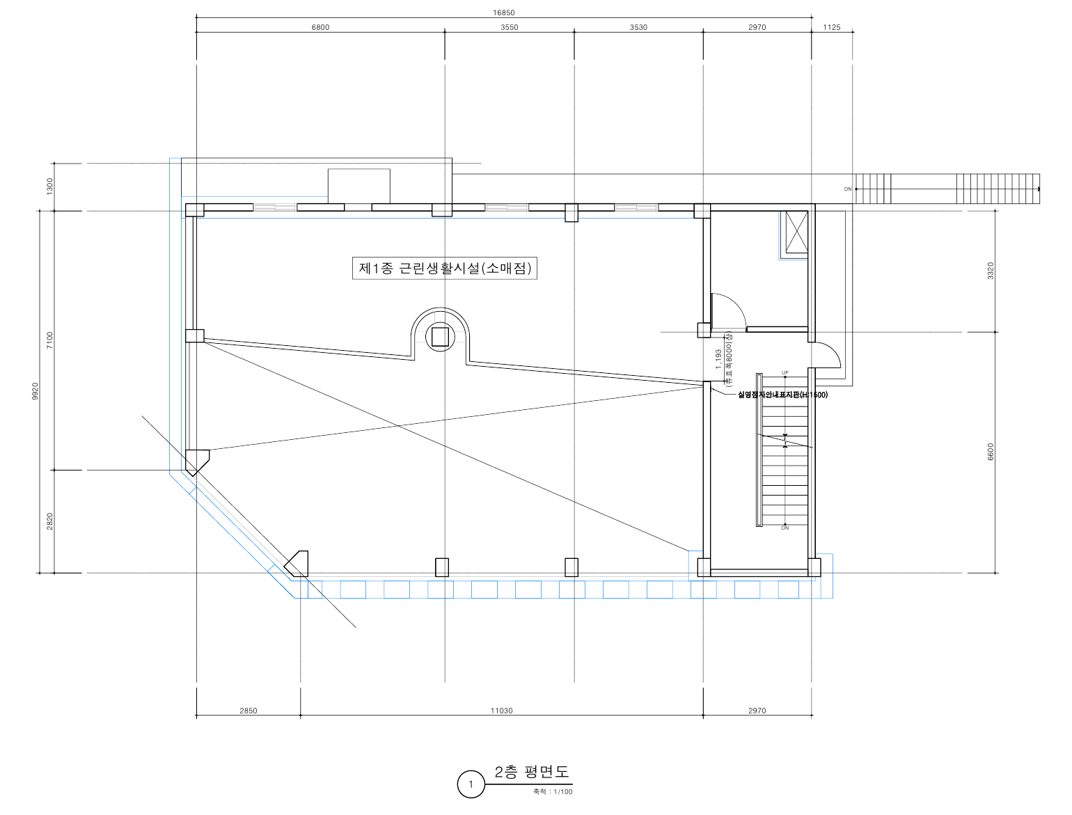
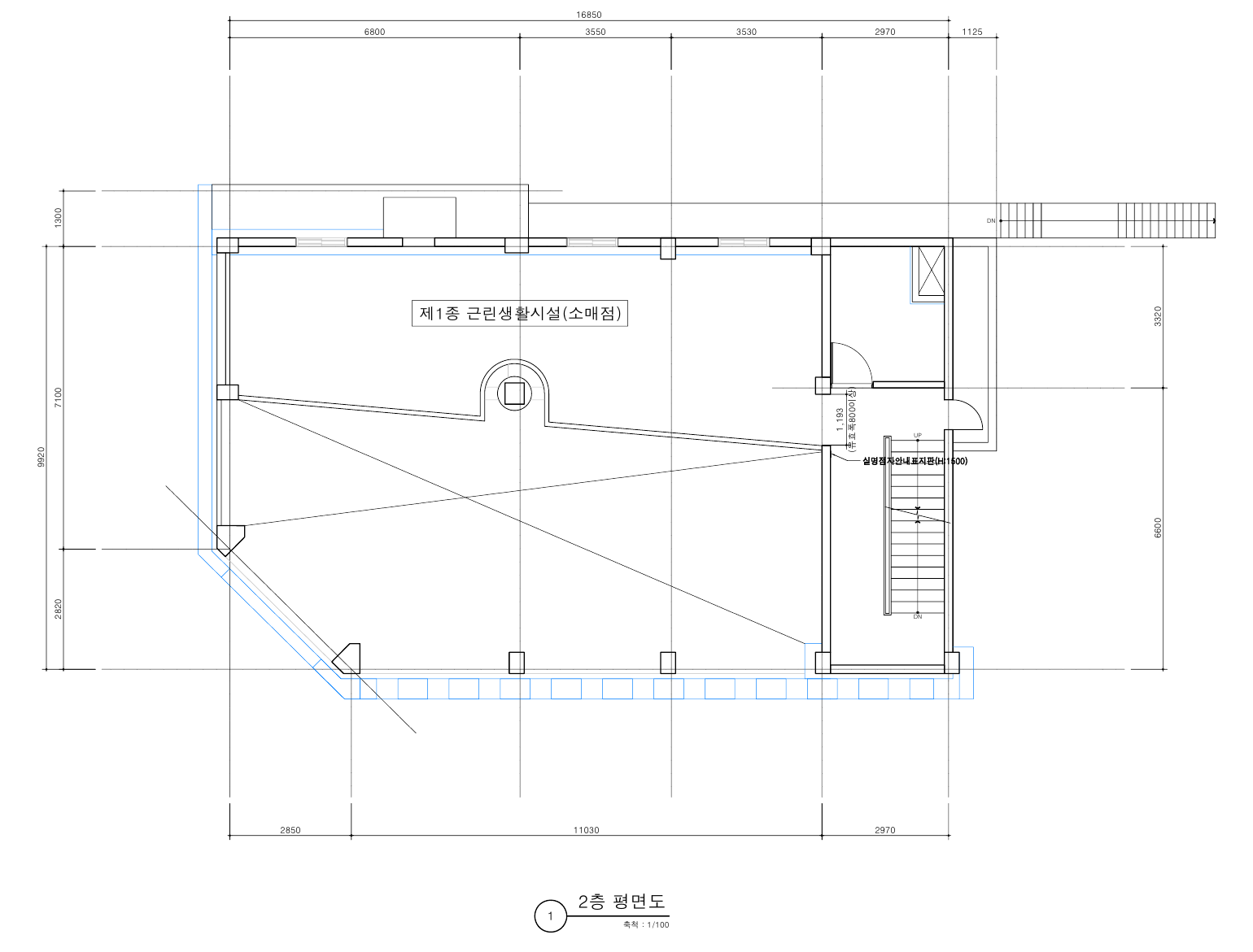
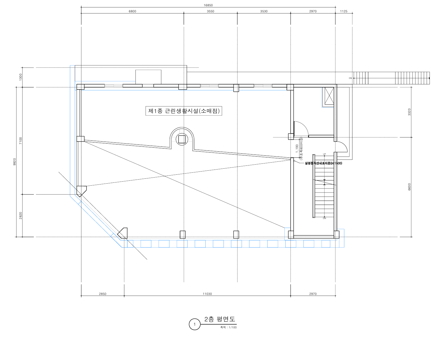
| 용도 | 근린생활시설(소매점) |
| 구조 | 철근콘크리트구조 |
| 발주처 | 강선미 건축사사무소 |










| 계획명 | 신사동 634-16 근린생활시설 대수선공사 |
| 대지위치 | 서울시 강남구 신사동 634-16번지 |
| 지역지구 | 도시지역, 제3종 일반주거지역 |
| 높이 | 10.37m |
| 건축면적 | 179.50m2 |
| 연면적 | 559.94m2 |
| 규모 | 지하1층 / 지상3층 |
| 용도 | 근린생활시설(소매점) |
| 구조 | 철근콘크리트구조 |
| 발주처 | 강선미 건축사사무소 |
댓글